【0802】戸建/黒川字大杉川原358番地(200万円)

地図

物件詳細

物件番号 0802
200万円 建物 7DK
地域・エリア 櫛引地域 郊外
所在地 山形県鶴岡市黒川字大杉川原358番地
やまがたけんつるおかし くろかわあざおおすぎがわら
交通 JR羽越本線 鶴岡駅
山形自動車道 庄内あさひIC
周辺環境・学区 櫛引東小学校
櫛引中学校
引渡時期 応相談 仲介手数料(別途) 30万円
地目 宅地 用途地域
都市計画 市街化調整区域 地勢 平坦
土地面積 482.07㎡ 土地面積計測方式 公簿
セットバック セットバック量
私道負担面積 取引態様 仲介
建ぺい率 70% 容積率 200%
接道状況 一方
接道方向1 接道間口1 12.5m
接道種別1 公道 接道幅員1 3.0m
位置指定道路1
土地権利 所有権 国土法届出 不要
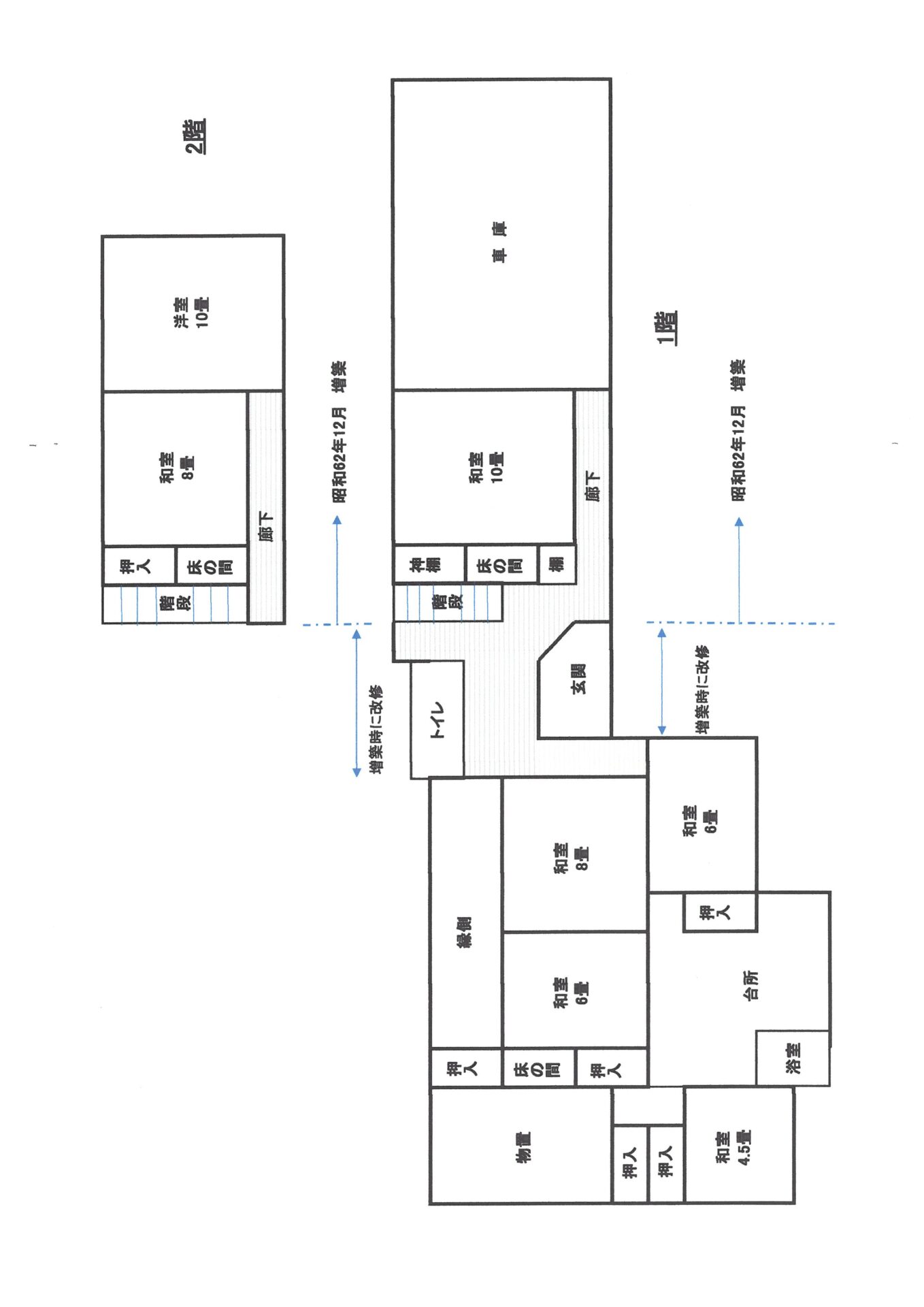
間取 7DK
建物構造 木造 建物面積計測方式 壁芯
建物面積 195.12㎡
建物種別 2階建
築年月 不詳 昭和62年増築 新築・未入居 中古
駐車場 あり
情報公開日 2026年03月25日
不動産仲介業者 未定

・世界的にも有名な国重要無形民俗文化財「黒川能」があるくしびきエリアの戸建

・新築年月日は不明ですが、昭和62年に増築してきれいにお使いです。

・売主様のご厚意により家電等家財はご希望によりお譲りいたします。

・現況有姿でのお引渡し、価格応談可

【Life Information】

・鶴岡市役所櫛引庁舎まで2KM(車で4分)・鶴岡市役所まで9.1KM(車で14分)・スーパーまで3.9KM(車で7分)・鶴岡駅まで9.9KM(車で16分)・庄内空港まで22.9KM(車で30分)・庄内あさひインターまで8.2KM(車で11分)・たらのきだいスキー場まで6.7KM(車で10分)・あさひカントリークラブまで9KM(車で17分)・羽黒山五重塔まで13.1KM(車で17分)

※本ぺージの掲載内容と現況に相違がある場合は現況優先とします。

このぺージをスマートフォンで見る

【0802】戸建/黒川字大杉川原358番地(200万円)

この物件(【0802】戸建/黒川字大杉川原358番地(200万円))について問い合わせる

    必須お名前

    必須フリガナ

    必須年代

    必須電話番号1


    連絡が付きやすい番号をご入力ください(携帯可)

    電話番号2

    必須メールアドレス

    必須確認用メールアドレス

    必須ご住所

    郵便番号半角数字で入力(ハイフン不要)

    必須丁目番地

    集合住宅の場合

    必須お問い合わせ内容

    必須ご予算

    必須物件探しの目的

    その他の希望条件

    必須ご希望連絡方法

    詳細記入欄

     上記の内容で送信します。よろしければチェックを入れてください。