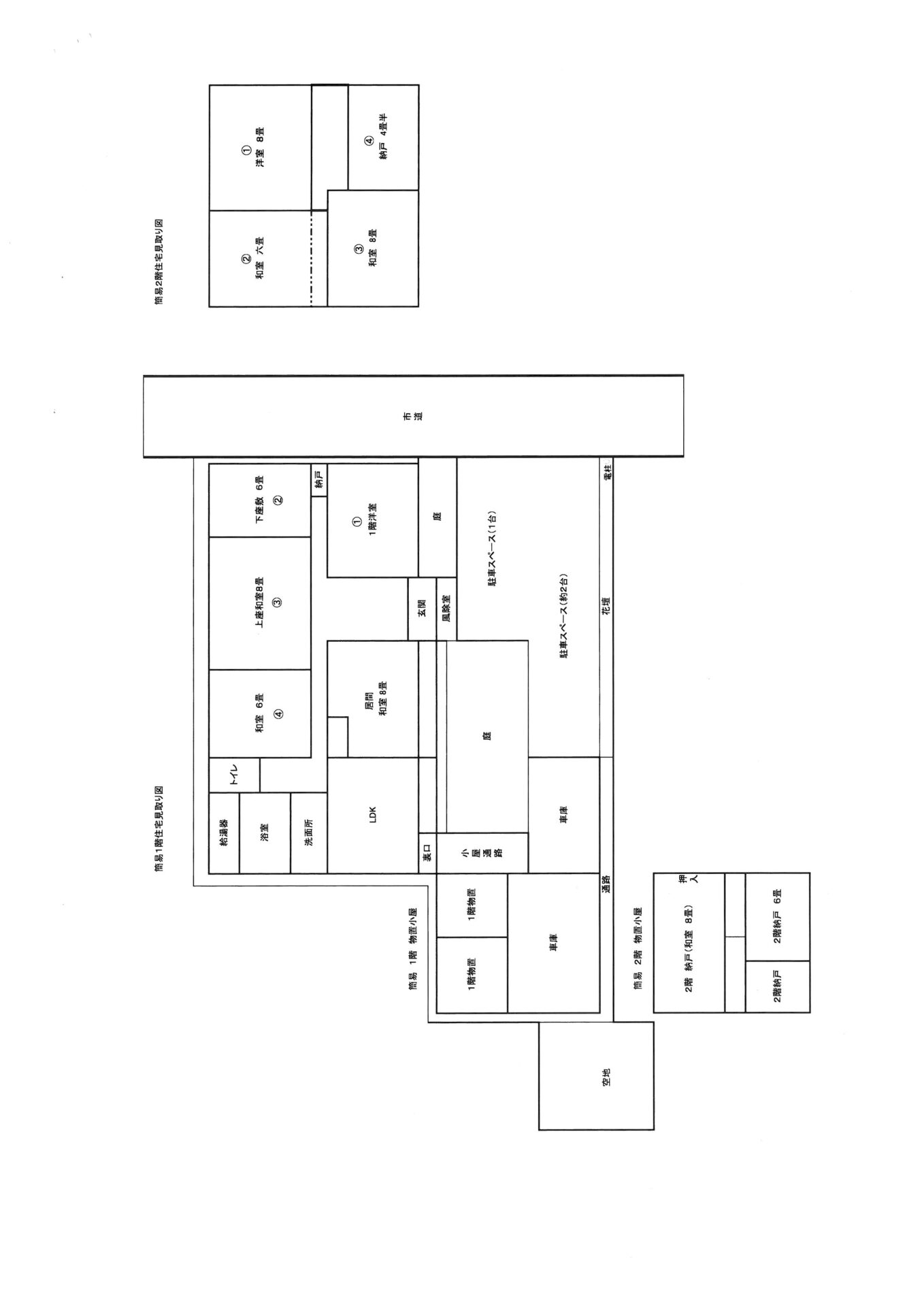
【0812】戸建/三瀬字殿田80(350万円)

地図

物件詳細

物件番号 0812
350万円 建物 8DK
地域・エリア 鶴岡地域 沿岸部
所在地 山形県鶴岡市三瀬字殿田80
やまがたけんつるおかし さんぜあざとのだ
交通 JR羽越本線 三瀬駅
日本海東北自動車道 三瀬IC
周辺環境・学区 豊浦小学校
豊浦中学校
地目 宅地 用途地域
都市計画 市街化調整区域 地勢 平坦
土地面積 343.79㎡ 土地面積計測方式 公簿
セットバック セットバック量
私道負担面積 取引態様 仲介
建ぺい率 70% 容積率 200%
接道状況 一方
接道方向1 北東 接道間口1 21.0m
接道種別1 公道 接道幅員1 5.5m
位置指定道路1
土地権利 所有権 国土法届出 不要
間取 8DK
建物構造 木造 建物面積計測方式 壁芯
建物面積 216.82㎡
建物種別 2階建
築年月 昭和56年8月4日 新築・未入居 中古
駐車場 あり
不動産仲介業者 未定

・三瀬郵便局近くの海沿いの戸建

・契約次第入居可能です。

・現況有姿でのお引渡し

【Life Information】

・郵便局まで130m(徒歩2分)・三瀬駅まで400m(徒歩5分)・三瀬海水浴場まで900m(徒歩12分)

・コンビニまで1Km(車で2分)・三瀬インターチェンジまで1.5k(車で3分)・鶴岡駅まで17.8km(車で26分)・鶴岡市役所まで17km(車で23分)・庄内空港まで24.4km(車で22分)

※本ぺージの掲載内容と現況に相違がある場合は現況優先とします。

このぺージをスマートフォンで見る

【0812】戸建/三瀬字殿田80(350万円)

この物件(【0812】戸建/三瀬字殿田80(350万円))について問い合わせる

    必須お名前

    必須フリガナ

    必須年代

    必須電話番号1


    連絡が付きやすい番号をご入力ください(携帯可)

    電話番号2

    必須メールアドレス

    必須確認用メールアドレス

    必須ご住所

    郵便番号半角数字で入力(ハイフン不要)

    必須丁目番地

    集合住宅の場合

    必須お問い合わせ内容

    必須ご予算

    必須物件探しの目的

    その他の希望条件

    必須ご希望連絡方法

    詳細記入欄

     上記の内容で送信します。よろしければチェックを入れてください。